
Entrant Company
Category
Client's Name
Country / Region
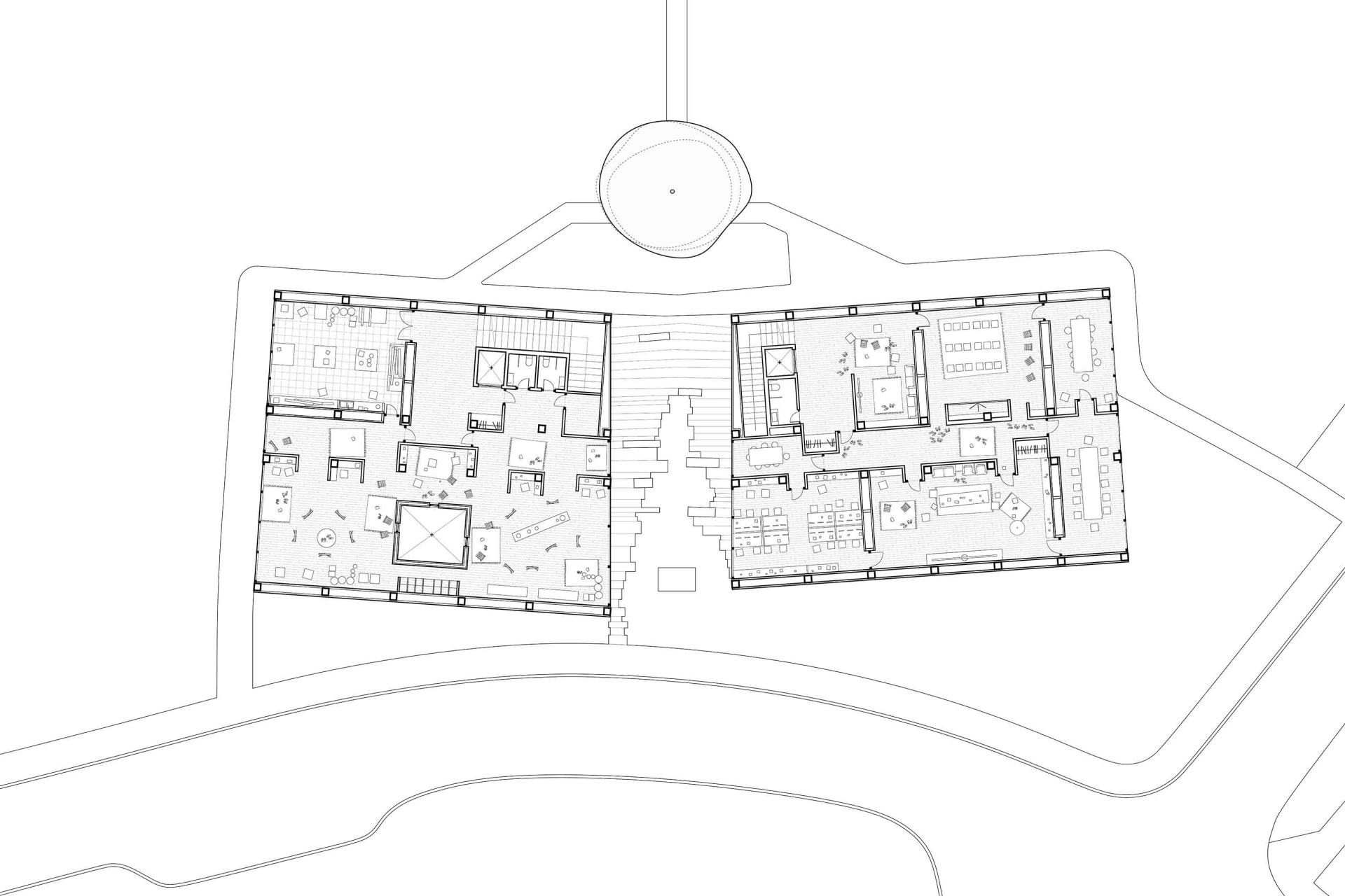
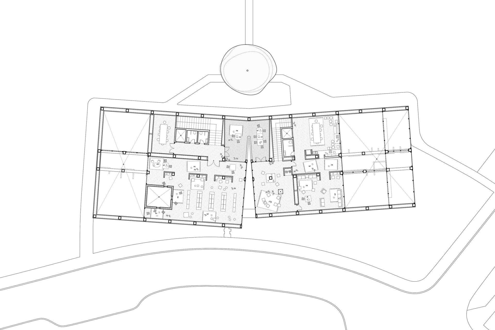
A new school for Outer Coast College is conceived as a new home. The project presents a cleft face to the world. This act of splitting responds to the dark history of the Sheldon Jackson School, while also revealing hints of new life within the building to the public. In contrast, the project presents a unified face to the school and its students—one that is whole and represents home. The two parts of the school accommodate programs for students and faculty, while also providing access to the public, eventually converging at the summit. The openness of the layout is informed by Tlingit culture, emphasizing communication and the oral transmission of knowledge.
Credits
Entrant Company
InventIndia Innovations Pvt. Ltd.
Category
Product Design - New Category: Hybrid Energy Cooking System
Entrant Company
ENJOY LIFE INTERIOR DESIGN
Category
Interior Design - Home Décor
Entrant Company
CIMOR OFFICIAL
Category
Product Design - New Category: Best Intensive Hydration & Skin Barrier Repair Sheet Mask
Entrant Company
Shenzhen Qianhai Nicemay Medical Beauty Instruments Co., Ltd.
Category
Product Design - Personal Care